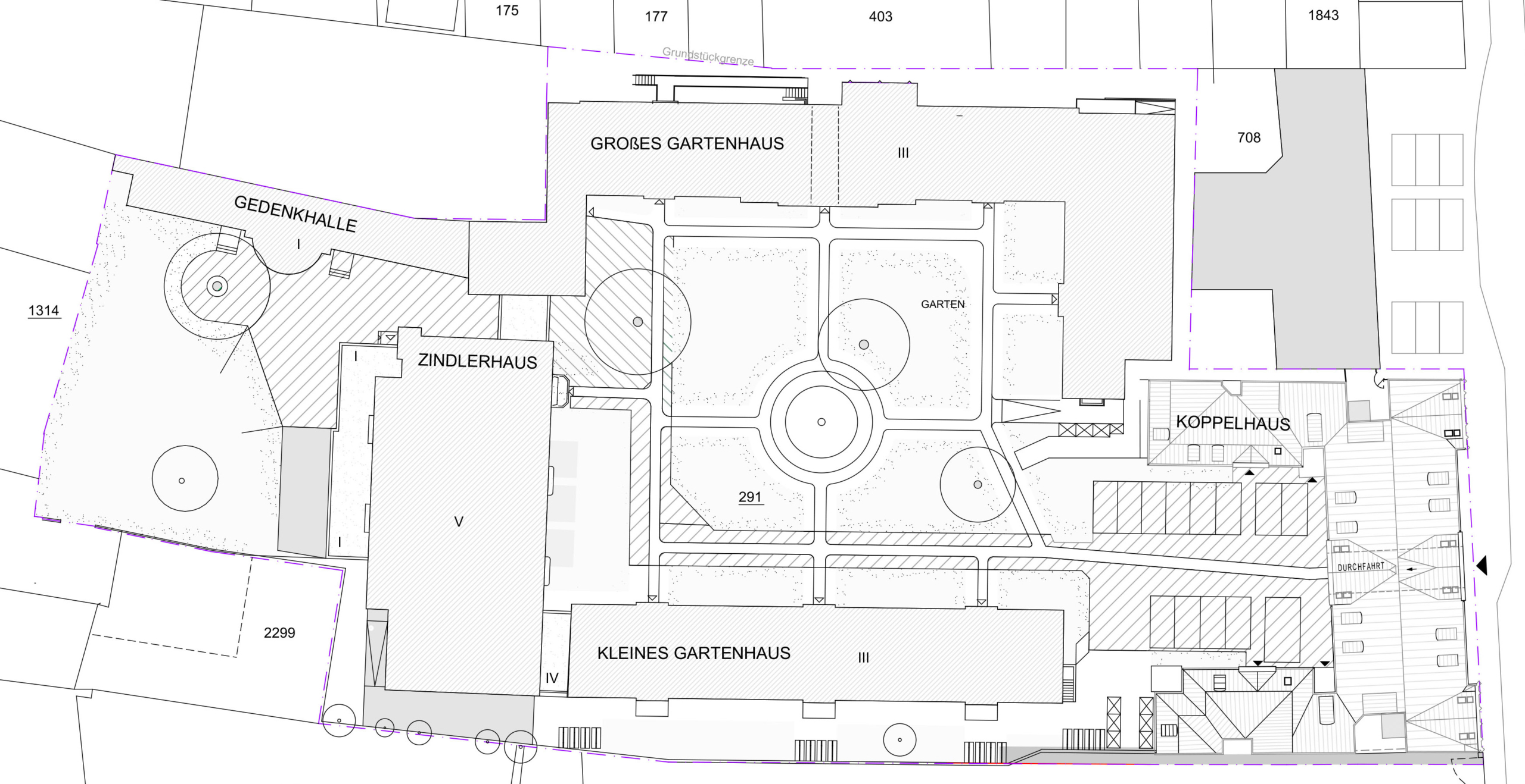
Heerlein- und Zindler-Stiftung, Kleines und Großes Gartenhaus

Koppel 17, 20099 Hamburg

Umbau- und Sanierungsmaßnahmen mehrerer unter Denkmalschutz stehender Stiftsgebäude

Die Heerlein- und Zindler-Stiftung ist eine unabhängige und gemeinnützige Stiftung für Altenhilfe und Fürsorge.

Durch die mildtätige Ausrichtung der Stiftung und mit Hilfe von öffentlichen Fördermitteln werden langfristig preiswerte Mieten in unmittelbarer Nähe zur Außenalster sichergestellt.

Die modernen, zeitgemäßen Umbau- und Sanierungsmaßnahmen und die baulichen Anforderungen an Servicewohnanlagen bilden eine besondere Herausforderung in der Planung, der Abstimmung und der Ausführung zwischen dem Denkmalschutz und der öffentlichen Förderung der bestehenden Stiftsgebäude.

Auftraggeber: Heerlein- und Zindler-Stiftung
vertreten durch: STATTBAU Hamburg GmbH
Leistungszeitraum: von 2016 bis 2021
Fotos: planerkollektiv

Ihr Projektfilter: close